
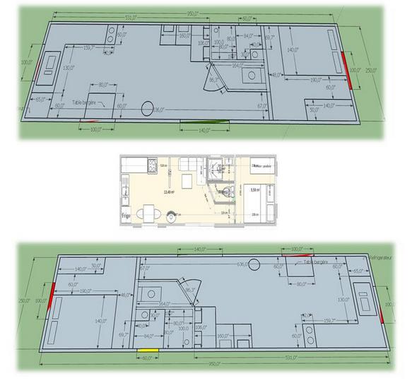
Établissement Dupriez: 
Roulotte-habitat fabrique pour vous des roulottes habitable sur meusure
à partir de bois régionaux de qualités...
Roulotte équipée: 
Tout y est, vous pouvez vous installer confortablement
 et vous laissez aller à l'esprit bohème...












